M120 series hidden frame curtain wall
Hidden Frame Curtain Wall Profiles|Structural Glazing|Minimalist Design|System Solution
Professional hidden frame curtain wall profiles manufacturer! Structural silicone glazing technology, creates pure architectural facade. Maximum wind resistance, custom designs, free technical support, 20-year quality guarantee!
→Get a free layout plan & quote now!
Description
Key Selling Points:
Frame Hidden, Beauty Revealed! Innovative hidden frame system creating ultra-clean architectural aesthetics
Hidden Frame Pain Points:
Visible frames ruining building aesthetics?
Inadequate sealing causing water leakage?
Structural stability concerns?
Difficult installation with high precision requirements?
Poor system compatibility?
Your Invisible Aesthetics Solution:
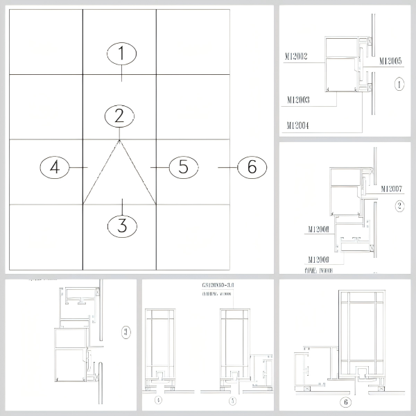
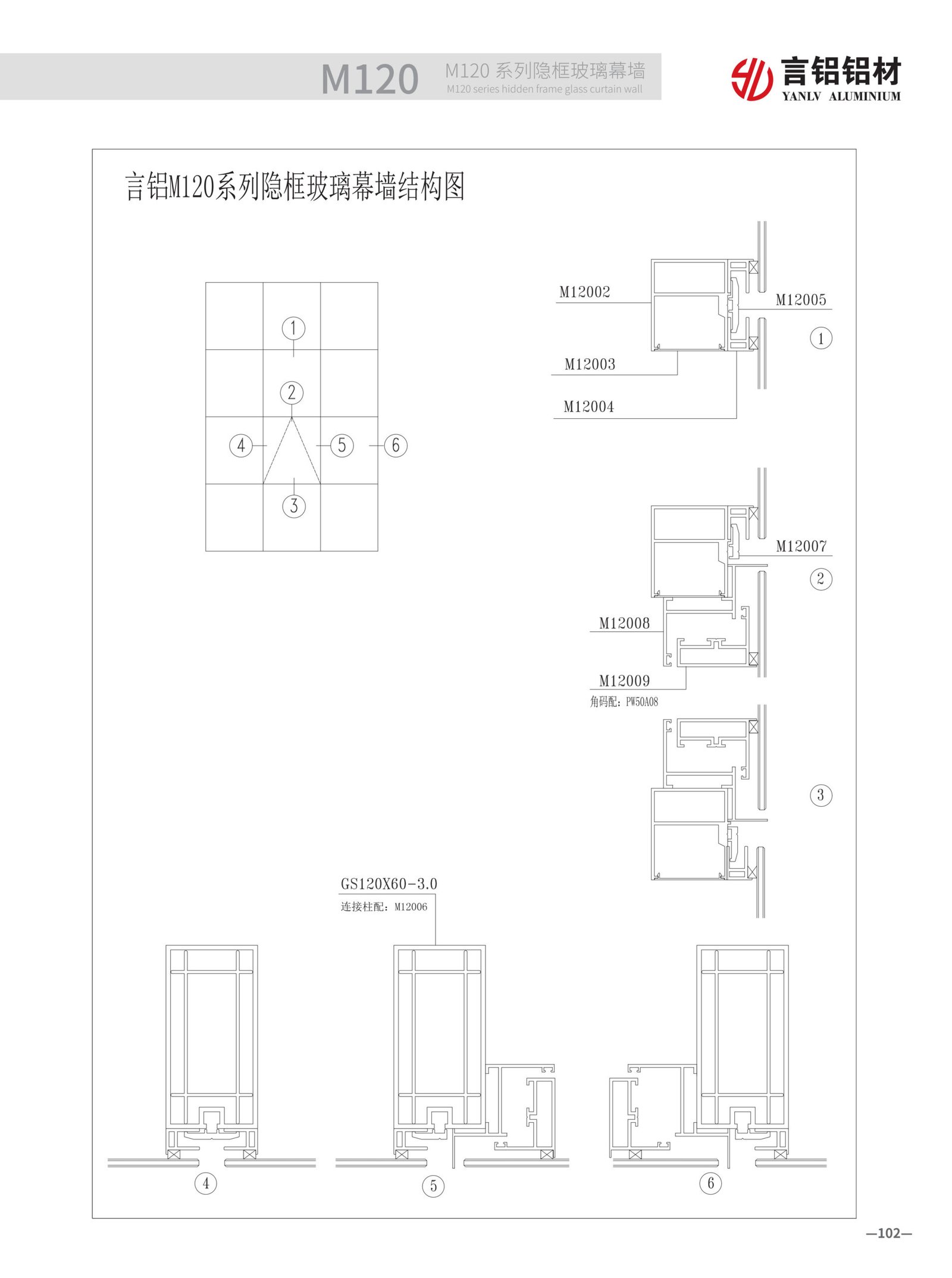
HiddenFrame Series Curtain Wall Profiles with structural silicone glazing technology, visible frame width ≤20mm, achieving ultra-clean large-scale glazing effects
Core Advantages:
🎨 Ultimate Aesthetic Effect
Pain: Frames ruin appearance
Solution: Narrow 20mm visible frame, creating pure glass facade
Keywords: hidden frame profiles
🛡️ Reliable Structural Safety
Pain: Structural stability concerns
Solution: 6063-T6 high-strength aluminum, wind resistance Grade 9
Keywords: structural aluminum profiles
💧 Excellent Sealing Performance
Pain: Water leakage issues
Solution: Multi-layer sealing, highest water/air tightness ratings
Keywords: sealing curtain wall profiles
⚡ Easy Installation System
Pain: Complex installation
Solution: Modular design, 50% faster installation
Keywords: easy install profiles
Technical Support:
✅ Free curtain wall design
✅ Structural calculation reports
✅ 20-year quality guarantee











Reviews
There are no reviews yet.